安芸郡熊野町東山(全3区画)2号棟
【安芸郡熊野町東山】全3区画 2号棟
☆耐震等級3の住宅性能評価取得
長期優良住宅
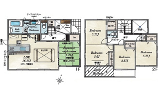
16.25帖リビング
2階3室
4LDK
☆くまの・みらい保育園 徒歩9分
☆聖徳幼稚園 徒歩3分
☆熊野第三小学校 徒歩9分
☆熊野中学校 徒歩29分
☆ディオ熊野店 徒歩19分
☆ハローズ 徒歩17分
☆セブンイレブン 徒歩7分
-
ローンシミュレーションこの物件を購入した場合の、月々の支払い価格の一例です。借り入れを保証するものではございません。
- 返済期間
-
- 金利
-
- ボーナス時の増額(1回分)
-
- 借入金額:
-
- 頭金:
-

- 毎月の返済額:
(※元利均等方式 金利5.00%まで ※返済年数5~50年まで入力できます)
(※ボーナスは年2回で計算しています。1000万円まで入力できます)
(※物件購入時、その他諸費用が発生する場合がございます)
情報の見方担当者のコメント (株)エコキューブ【クリックホーム】

【お部屋見学・ローン相談】
お問合せ・ご来店
お待ちしております♪
■住宅ローン相談もクリックホームにお任せください♪
不動産購入は、ほとんどの方が住宅ローンを利用されます。
無理のない資金プランをご提案いたします。
■各金融機関によりお借り入れできる金額や金利が違います。
お客様にとってベストな金融機関で審査いたします♪
■住宅ローンの審査だけでも受付しておりますので
お気軽にご相談ください♪
■クリックホーム掲載以外でも他社様が掲載の物件も何件でもご見学OKです♪
■スーモ掲載物件でしたらどの物件もご見学OKです!
■当日の見学・ローン相談もOKです♪
(当日希望の際はお電話にてお願いいたします)
■住み替えの資金や、お車・他のローンがある方も
おまとめローンでお支払いをシュミレーション♪
家具家電も購入したい方も
まとめるローンでお支払いを見積もりシュミレーション♪
■現在のお住まいを売却されたい方もクリックホームがお手伝いします
住み替えしたい方、ぜひ1度ご相談ください♪
■送迎希望の方もお伝えください♪
■ご契約のお客様には商品券(5万円or8万円)プレゼント♪
マイホーム探しは、ぜひ「アットホームな」クリックホームへ♪
■お家のことならどんなことでも随時受け付けております。
購入後もお任せください♪
■税金・補助金制度など不動産購入のことは疑問がいっぱいです。
どんなことでも何度でも分かりやすくお答えいたします♪
■女性スタッフもいるので女性お一人でもお子様連れも大歓迎です♪
キッズスペース・車種問わず駐車場も完備しております。
安芸郡の新築戸建てなら
「クリックホーム」へ
おまかせください♪
(株)エコキューブ
【クリックホーム広島店】
0120-800-271
9:00~20:00
(定休日も繋がります)
物件概要
【新築一戸建】 物件番号:101200758 情報更新日:2026年02月13日 次回更新予定日:2026年02月27日所在地 広島県安芸郡熊野町東山 交通 - 「団地西入口」バス停下車 徒歩4分
間取り/詳細 4LDK/ 建物面積(坪数) 108.89㎡(32.93坪) 価格 2,990万円 駐車場/月額料金 有/- 土地の敷金/保証金 -/- 借地料/借地期間 -/- 土地権利 所有権 土地面積(坪数) 170.81㎡(51.66坪) 傾斜地部分面積 - 路地状敷地 - 私道負担面積/セットバック -/無 高圧線下面積 - 地目/地勢 宅地/- 接道状況 -(東 公道 3.6m) 建ぺい率/容積率 60%/200% 用途地域 第一種中高層住居専用 都市計画 市街化区域 種別/構造 新築一戸建/木造 階建 2階建 築年月(築年数) 2025年 12月 (新築) 総区画数/販売区画数 3区画/2区画 向き - 現況 完成済み その他の法令上の制限 景観法/宅地造成及び特定盛土等規制法 取引態様/引渡時期 仲介/相談 建築確認番号 第R07SHC116530 号 物件番号 101200758 取引条件の有効期限 2026年02月27日 設備条件 - ペット相談
- 閑静な住宅地
- 建設住宅性能評価書付
- カードキー
- ファミリー向け
- キャンペーン
- フローリング
- 公営水道
- 公共下水
- オール電化
- 駐車3台可
- 耐震構造
- IHクッキングヒーター
- 食器洗い乾燥機
- システムキッチン
- 対面式キッチン
- バス・トイレ別
- 追焚機能浴室
- 浴室乾燥機
- 温水洗浄便座
- 洗髪洗面化粧台
- トイレ2ヶ所
- 浴室1坪以上
- ウォークインクロゼット
- 複層ガラス
- ディンプルキー
取扱会社 - ㈱エコキューブ【クリックホーム広島店】
- 広島県広島市西区草津浜町19-14 金本ビル 102
- TEL:0120-800-271
- 国土交通大臣 (2) 第9697号
- 公益社団法人 不動産保証協会
公益社団法人 不動産保証協会 東京都本部
※地図上に表示される物件の位置は付近住所に所在することを表すものであり、実際の物件所在地とは異なる場合がございます。
物件お問い合わせ
- 掲載物件数
-
件
- 本日の更新件数
-
件
価格と住所の近い物件
- 安芸郡熊野町東山(全3区画)3号棟
- 2,990万円 4LDK/108.26㎡
- 広島県安芸郡熊野町東山
- 安芸郡熊野町萩原1丁目 限定1棟
- 2,780万円 4LDK/105.99㎡
- 広島県安芸郡熊野町萩原1丁目
- 安芸郡熊野町城之堀1丁目 全5区画 NO9
- 2,330万円 3LDK/95.58㎡
- 広島県安芸郡熊野町城之堀1丁目
- 安芸郡熊野町城之堀1丁目 全5区画 NO3
- 2,280万円 4LDK/104.48㎡
- 広島県安芸郡熊野町城之堀1丁目
- 安芸郡熊野町城之堀1丁目 全5区画 NO2
- 2,180万円 3LDK/106.10㎡
- 広島県安芸郡熊野町城之堀1丁目















