呉市焼山東2丁目 限定1棟【71坪】【P3台可】
【呉市焼山東2丁目】
限定1棟
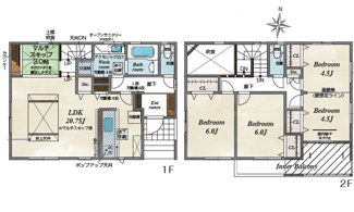
☆耐震等級3の住宅性能評価住宅
20帖リビング
ファミリータイプ3LDK
2階3部屋
オール電化
☆万惣 徒歩14分
☆焼山保育園 徒歩8分
☆花の木幼稚園 徒歩5分
☆昭和中央小学校 徒歩16分
☆昭和中学校 徒歩12分
☆バス停 徒歩3分
ローンシミュレーションこの物件を購入した場合の、月々の支払い価格の一例です。借り入れを保証するものではございません。
- 返済期間
-
- 金利
-
- ボーナス時の増額(1回分)
-
- 借入金額:
-
- 頭金:
-

- 毎月の返済額:
(※元利均等方式 金利5.00%まで ※返済年数5~50年まで入力できます)
(※ボーナスは年2回で計算しています。1000万円まで入力できます)
(※物件購入時、その他諸費用が発生する場合がございます)
担当者のコメント (株)エコキューブ【クリックホーム】

【お部屋見学・ローン相談】
お問合せ・ご来店
お待ちしております♪
■住宅ローン相談もクリックホームにお任せください♪
不動産購入は、ほとんどの方が住宅ローンを利用されます。
無理のない資金プランをご提案いたします。
■各金融機関によりお借り入れできる金額や金利が違います。
お客様にとってベストな金融機関で審査いたします♪
■住宅ローンの審査だけでも受付しておりますので
お気軽にご相談ください♪
■クリックホーム掲載以外でも他社様が掲載の物件も何件でもご見学OKです♪
■スーモ掲載物件でしたらどの物件もご見学OKです!
■当日の見学・ローン相談もOKです♪
(当日希望の際はお電話にてお願いいたします)
■住み替えの資金や、お車・他のローンがある方も
おまとめローンでお支払いをシュミレーション♪
家具家電も購入したい方も
まとめるローンでお支払いを見積もりシュミレーション♪
■現在のお住まいを売却されたい方もクリックホームがお手伝いします
住み替えしたい方、ぜひ1度ご相談ください♪
■送迎希望の方もお伝えください♪
■ご契約のお客様には商品券(5万円or8万円)プレゼント♪
マイホーム探しは、ぜひ「アットホームな」クリックホームへ♪
■お家のことならどんなことでも随時受け付けております。
購入後もお任せください♪
■税金・補助金制度など不動産購入のことは疑問がいっぱいです。
どんなことでも何度でも分かりやすくお答えいたします♪
■女性スタッフもいるので女性お一人でもお子様連れも大歓迎です♪
キッズスペース・車種問わず駐車場も完備しております。
呉市の新築戸建てなら
地元に詳しい
「クリックホーム」へ
おまかせください♪
(株)エコキューブ
【クリックホーム広島店】
0120-800-271
9:00~20:00
(定休日も繋がります)
物件概要
【新築一戸建】 物件番号:100253191 情報更新日:2026年01月09日 次回更新予定日:2026年01月23日| 所在地 | 広島県呉市焼山東2丁目 | ||
|---|---|---|---|
| 交通 |
|
||
| 間取り/詳細 | 3LDK/ | 建物面積(坪数) | 110.13㎡(33.31坪) |
| 価格 | 2,490万円 | ||
| 駐車場/月額料金 | 有/- | ||
| 土地の敷金/保証金 | -/- | 借地料/借地期間 | -/- |
| 土地権利 | 所有権 | 土地面積(坪数) | 235.75㎡(71.31坪) |
| 傾斜地部分面積 | - | 路地状敷地 | - |
| 私道負担面積/セットバック | -/無 | 高圧線下面積 | - |
| 地目/地勢 | 宅地/- | 接道状況 | -(南 公道 6.2m) |
| 建ぺい率/容積率 | 50%/100% | 用途地域 | 第一種低層住居専用 |
| 都市計画 | 市街化区域 | 種別/構造 | 新築一戸建/木造 |
| 階建 | 2階建 | 築年月(築年数) | 2025年 9月 (新築) |
| 総区画数/販売区画数 | 1区画/1区画 | 向き | - |
| 現況 | 完成済み | その他の法令上の制限 | |
| 取引態様/引渡時期 | 仲介/即時 | 建築確認番号 | 第R07SHC108618号 |
| 物件番号 | 100253191 | 取引条件の有効期限 | 2026年01月23日 |
| 設備条件 |
|
||
| 取扱会社 |
|
||
※地図上に表示される物件の位置は付近住所に所在することを表すものであり、実際の物件所在地とは異なる場合がございます。














